24
ofert
Kleczkowski Klaudiusz

pośrednik w obrocie nieruchomościami (licencja 6205)

Licencja: 6205

k.kleczkowski@akcespolska.com

602 500 315
22 844 22 02

zostaw wiadomość
72,71 zł/m2 cena: 10 044 zł

Udostępnij ofertę

Opis nieruchomości

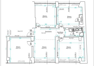
Lokal składa się z pięciu oddzielnych pokoi biurowych, korytarza oraz pom. socjalnego z kuchnią i toaletą. Układ pomieszczeń można zmienić.

Współczynnik powierzchni wspólnej 6%.
Indeksacja roczna o HICP/Polska.
Łączny miesięczny koszt najmu z opłatami eksploatacyjnymi, to kwota ok. 16 000 zł + Vat + prąd.
Kaucja 3 x czynsz i opłaty eksploatacyjne netto.
1 miejsce parkingowe naziemne w cenie 350 PLN/m-c netto.

Ściany odmalowane na biało, wykładzina dywanowa na podłodze, kompletne poziome okablowanie strukturalne.

Dostępność: do już.

Przedstawiona wyżej propozycja nie jest ofertą handlową w rozumieniu przepisów prawa, lecz ma jedynie charakter informacyjny. Wszelkie dane dotyczące nieruchomości uzyskano na podstawie oświadczeń właściciela i Agencja nie bierze za nie odpowiedzialności. 

Nota prawna

Opis oferty zawarty na stronie internetowej sporządzany jest na podstawie oględzin nieruchomości oraz informacji uzyskanych od właściciela, może podlegać aktualizacji i nie stanowi oferty określonej w art. 66 i następnych K.C.

Szczegóły

Symbol oferty LW-161129
Powierzchnia 138,13 m²
Piętro 8
Rodzaj budynku biurowiec
Standard
Ilość pięter w budynku 9
Stan lokalu bardzo dobry
Stan prawny Własność
Rok budowy 2005
Przeznaczenie lokalu biurowe
Czynsz najmu netto /m2 17,00 PLN
Winda tak
nowa oferta
lokal na wynajem - Warszawa, Wola, Pańska

Warszawa, Wola, Pańska
lokal na wynajem

LW-161240

Proponowana do wynajęcia powierzchnia składa się z 5 pokoi, małego pomieszczenia/magazynu, kuchni, toalety i własnego korytarza. Układ pomieszczeń można zmienić. Współczynnik powierzchni wspólnej 6%. Indeksacja roczna o HICP/Polska. Łączny koszt najmu z opłatami ...

Powierzchnia
120,33 m2
Piętro
3
Cena za m2
72,71 zł
cena 8 749
lokal na wynajem - Warszawa, Wola, Pańska

Warszawa, Mokotów, Sadyba, Zdrojowa
lokal na wynajem

LW-152899

Bliźniak  po remoncie w centralnej części Sadyby w bardzo atrakcyjnej cenie Spokojne klimatyczne miejsce na Sadybie; jednocześnie blisko komunikacji miejskiej, Sadyba Best Mall, szkoły francuskiej, sklepów, kortów tenisowych. Dom: piwnica: garaż na 1 samochód, ...

Powierzchnia
320,00 m2
Pokoje
5 pokoi
Cena za m2
25,00 zł
cena 8 000
lokal na wynajem - Warszawa, Mokotów, Sadyba, Zdrojowa

Warszawa, Mokotów, Sadyba, Powsińska
lokal na wynajem

LW-161168

LOKAL USŁUGOWY NA SADYBIE przy ruchliwej ulicy Powsińskiej LOKAL: Świeżo wyremontowany lokal użytkowo - handlowy 105 m2, położony na parterze budynku. Lokal posiada witryny od strony parkingu. Dodatkowo istnieje możliwość bezpłatnej reklamy typu banner na elewacji ...

Powierzchnia
105,00 m2
Piętro
parter
Cena za m2
75,00 zł
cena 7 875
lokal na wynajem - Warszawa, Mokotów, Sadyba, Powsińska
nowa oferta
lokal na wynajem - Warszawa, Mokotów, Służew

Warszawa, Mokotów, Służew
lokal na wynajem

LW-161198

DOM NA BIURO, 9 POKOI/ 290 mkw przy stacji METRO WILANOWSKA piwnica: garaż 1 stanowisko (brama otwierana pilotem), pomieszczenia gospodarcze, kotłownia, parter: salon z kominkiem w dwóch częściach po 21 mkw, co daje powierzchnię 42 mkw, pokój-recepcja 15 mkw, garderoba ...

Powierzchnia
253,00 m2
Pokoje
6 pokoi
Cena za m2
39,53 zł
cena 10 000
lokal na wynajem - Warszawa, Mokotów, Służew

Napisz do nas

Proszę wypełnić to pole
Proszę wypełnić to pole
Proszę wypełnić to pole
Proszę wypełnić to pole
Trwa wysyłanie...

Ta strona wykorzystuje pliki cookies w celach statystycznych oraz w celu dostosowania naszych serwisów do indywidualnych potrzeb klientów. Zmiany ustawień dotyczących plików cookie można dokonać w dowolnej chwili modyfikując ustawienia przeglądarki. Korzystanie z tej strony bez zmian ustawień dotyczących cookies oznacza, że będą one zapisane w pamięci urządzenia.

rozumiem